Szociális otthon, vagy munkásszálló

19658 Nyomtatás Ajánlás Facebook

Kiváló befektetési lehetőség, több célú hasznosíthatóság!

Kardoskút község Békés vármegyében, Orosháza és Tótkomlós központjától is közel azonos távolságra, mindkettőtől nagyjából 8-10 kilométernyire fekszik, megközelíthető vonattal és autóbuszjárattal. A település lakossága kb. 700 fő, azonban Orosháza közelsége miatt jó ellátottságú, rendezett kistelepülés!
Legfontosabb turisztikai vonzereje, a Körös–Maros Nemzeti Park egyik legértékesebb részének számító Kardoskúti Fehér-tó a község délnyugati határszéle közelében található!
10 kilométeren belül elérhető az orosházi Orosháza-Gyopárosfürdő Gyógy-, Park- és Élményfürdő, valamint a tótkomlósi Rózsa Fürdő is!

Az ingatlan a település központjában helyezkedik el, a főtéri parkkal szemben, a polgármesteri hivatal és a művelődési ház közvetlen közelében. A központi elhelyezkedés miatt bolt, buszmegálló is 100 méteren belül megtalálható.

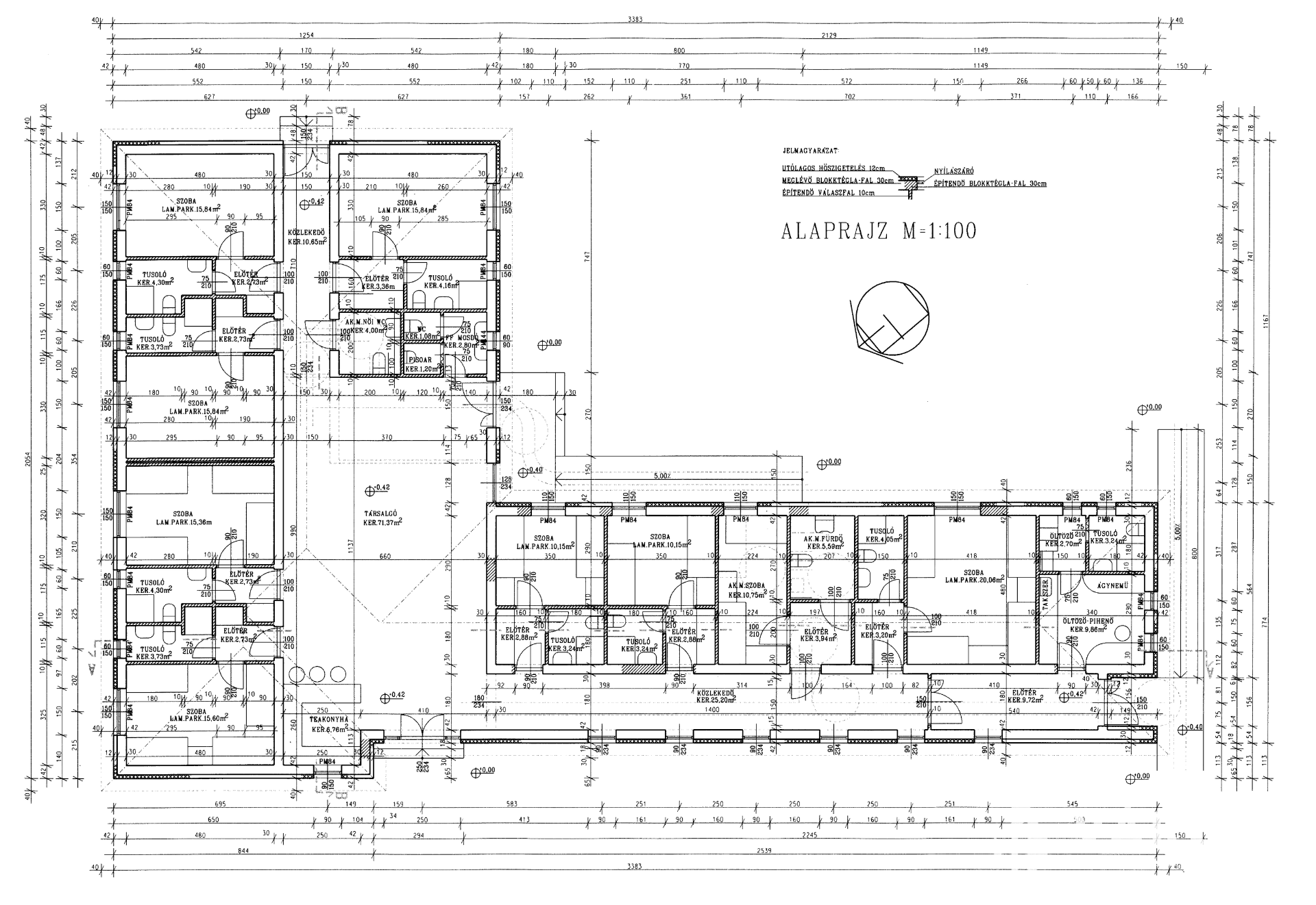
Az építmény eredetileg panziónak lett tervezve, de kialakítása és elhelyezkedése miatt alkalmas bentlakásos idősek otthonának, melyből jelenleg nagy hiány mutatkozik a megyében!
Az épület fő helyisége a 78 m2-es közösségi tér, ezen kívül 9 szoba került kialakításra, ahol minden szoba saját fürdővel rendelkezik, az egyik szoba akadálymentesített. Az épület rámpával ellátott, szintén akadálymentesített, az udvaron 10 parkolóhely kialakítása tervezett!

Az épület jelenleg kb. 60%-os készültségű, érvényes építési engedéllyel rendelkezik, a folyamat jelenleg az e-naplóban leállításra került.
Az épület fő- és válaszfalai elkészültek, a födém, a tető szintén kész, a víz- és csatornarendszer, a klímacsövezés, illetve a villanyszerelés (szerelvények nélkül) kiépítésre kerültek!
Megegyezés és igény szerint a jelenlegi kivitelező befejezi az építkezést!

Amennyiben egy jó befektetési lehetőséget keres, itt az alkalom!

Ügyfeleink számára irodánk teljes jogi hátteret, adás-vétellel kapcsolatos térítésmentes jogi tanácsadást biztosít!
Bank semleges, díjmentes hitel tanácsadással is hozzájárulunk, hogy megtalálja az ön számára legkedvezőbb megoldást!

Cseke Tamás
PRÉMIUM

Cseke Tamás

5 éve a Városi Ingatlaniroda tagja
Régióigazgató
Békéscsaba
+36 (70) 364 9243
Észrevétel a hirdetéssel kapcsolatban
Egy ingatlanos naplója