Nagycsaládosoknak, vállalkozáshoz exkluzív ingatlan eladó!

874 Nyomtatás Ajánlás Facebook

Eladó 278 m²-es, 7 szobás, exkluzív családi ház Ilk külterületén, parkosított környezetben, Falusi CSOK lehetőséggel

Ilk külterületén, páratlan nyugalmat és természetközeli életérzést kínáló, mégis teljesen közművesített környezetben eladó egy 2003-ban, egyedi tervek alapján épült, masszív szerkezetű, igényes kialakítású, nettó 278 m²-es, átgondolt, élhető térkialakítással rendelkező kétszintes családi ház, amely homlokzati megjelenésével az egykori kúriák hangulatát idézi. Az ingatlan mindössze 500 méterre található a település központjától, mégis zavartalan, csendes elhelyezkedésű.

Főbb műszaki jellemzők
-30 cm vastag B30 Porotherm falazat – időtálló, stabil szerkezet
-Fa nyílászárók, hőszigetelt üvegezéssel
-Galériás nappali, impozáns belmagassággal
-Erdélyi mestercserépkályha a nappaliban – kiváló hőleadás és különleges hangulat
-Fűtés: nagy teljesítményű gázkazán + vegyes tüzelésű kazán
-Melegvíz: villanybojler és gázkazán
-Műholdas televízió és internet bekötve

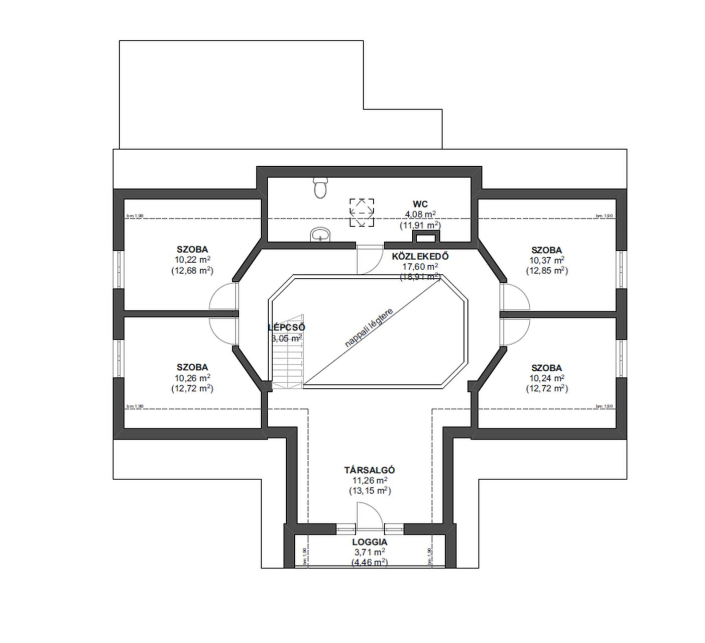
Az ingatlan helyiségei:
Földszint: tágas nappali–étkező galériás légtérrel, 3 különnyíló hálószoba, konyha + kamra, fürdőszoba, külön WC, közlekedő, kazánház. Déli tájolású, zárt terasz / télikert, ahonnan 3 irányban nyílik kilátás a parkosított kertre
Emelet: galériás körfolyosó, 4 hálószoba, nappali, fürdőszoba + tároló, loggia
A nappali felett nyitott légtér található, ahonnan gyönyörű tölgyfa lépcső vezet az emeletre.

A ház mögött külön bejáratú pince és garázs található, valamint tárolóhelyiségek és szerszámos kamrák, melynek tetején egy gazdálkodáshoz használható fúrt kúttal feltölthető víztározó található.
Az ingatlan egy 9 612 m²-es telken helyezkedik el, teljes közművel (víz, villany, gáz).
Az ingatlant 3 oldalról egy kb. 30 darab diófából álló liget öleli körbe, ezenkívül gyümölcsfák, más fafajtákkal és díszcserjék biztosítják a rendezett környezetet.

Opcióként a házhoz közvetlenül csatlakozó 5 hektár saját terület is eladó, számtalan hasznosítási lehetőséggel, továbbá telephely, mezőgazdasági hasznosításra alkalmas gépekkel és egy 30 éve működő rendezett Kft.

Az ingatlan besorolása: lakóház, udvar, gazdasági épület, így alkalmas lehet Falusi CSOK igénybevételére, mivel Ilk szerepel a preferált kistelepülések listáján.
(Banki előértékbecslés szükséges.)

Az ingatlan előzetes időpont egyeztetés alapján lehetséges, hívjon még ma a megtekintés miatt!

Exclusive Family Home for Sale in Ilk – Nature, Space and Tranquility with Full Utilities.
In the outskirts of Ilk, yet only 500 meters from the village center, we offer for sale a unique, individually designed family home, built in 2003, with a net floor area of 278 m², set in a fully serviced and exceptionally peaceful natural environment.

The architectural appearance of the house is inspired by traditional Hungarian manor houses, combining timeless elegance with practical, well-thought-out living spaces.
Main Features
Solid construction with 30 cm B30 Porotherm brick walls
Wooden windows with insulated glazing
Impressive open-plan living room with gallery and high ceilings
Hand-built Transylvanian ceramic stove in the living room – efficient heating and a unique atmosphere
Heating system: high-capacity gas boiler + solid fuel boiler
Hot water supplied by electric boiler and gas boiler
South-facing enclosed winter garden, offering panoramic views of the landscaped garden
Satellite TV and internet connection available
Layout
Ground Floor:
Spacious living and dining area with open gallery
3 separate bedrooms
Kitchen with pantry
Bathroom and separate WC
Utility room / boiler room
Enclosed terrace / winter garden
First Floor:
Gallery corridor
4 bedrooms
Additional living room
Bathroom with storage area
Loggia

A beautiful solid oak staircase connects the two levels, enhancing the elegant interior character of the home.
Additional Buildings
Behind the house, with separate access:
Garage and cellar – 39 m²
Storage rooms and tool sheds – 48 m²
Plot and Surroundings

9,612 m² plot, fully connected to public utilities (water, electricity, gas)
Landscaped garden in a well-maintained environment
The property is surrounded on three sides by a walnut tree grove (approx. 30 mature trees)
Additional trees: oak, pine, birch, ash
Ornamental shrubs and flowering plants
Fruit trees: apple, pear, cherry, various plum varieties, Japanese quince
Further away on the property: 75 sour cherry trees
The house is directly connected to an additional 5 hectares of private land, offering outstanding development or agricultural potential

Financial & Legal Information

The property is registered as a residential house with yard and outbuildings.
Ilk is listed among Hungary’s “preferred rural settlements”, making the property potentially eligible for state housing subsidies (subject to bank valuation and approval).

Gorzsás Zsuzsanna

Gorzsás Zsuzsanna

2 éve a Városi Ingatlaniroda tagja
Ingatlanértékesítő
Debrecen
+36 (70) 708 1730
Észrevétel a hirdetéssel kapcsolatban
Egy ingatlanos naplója