Modern lakás a víztorony szomszédságában

2052 Nyomtatás Ajánlás Facebook

Árcsökkenés! 89.9 helyett most 84.9 millió!

Eladó egy egyedülálló adottságokkal rendelkező, belvárosi lakás Siófok legfrekventáltabb pontján, a Fő téren. Ez az ingatlan nem csupán egy lakás, hanem egy kiváló befektetési lehetőség vagy egy kényelmes, városi otthon.

Főbb paraméterek:

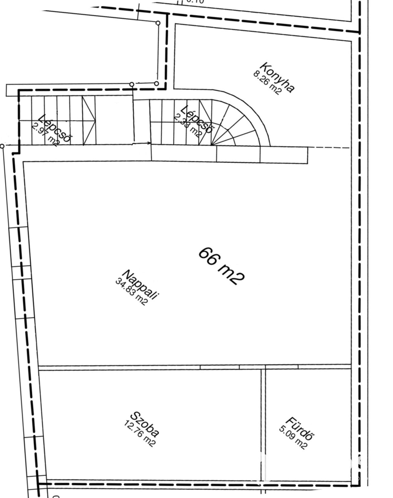
- Lakótér: 66 m²-es alapterület, amely a tetőtér beépítésével további kb. 38 m²-rel növelhető, így akár egy tágas kétszintes lakás is kialakítható.
- Privát szféra: Biztonságos udvarban található, közvetlen utcai bejárattal. Különlegessége, hogy mindössze egyetlen szomszéddal rendelkezik.
- Műszaki állapot: 10 cm-es hőszigetelés, 3 rétegű modern nyílászárók, gázcirkó fűtés radiátoros hőleadással, inverteres klíma.

Belső elrendezés:
A lakás tágas és világos terei magukban foglalnak egy igényesen berendezett gépesített konyhát, egy nagyméretű nappalit étkezővel, egy hálószobát és egy fürdőszobát. Az alaprajz sok lehetőséget rejt: igény szerint egy további hálószoba is könnyedén leválasztható, valamint a tetőtér is beépíthető.

Miért érdemes ezt választania?
- Központi elhelyezkedésének köszönhetően ideális saját otthonnak, vagy nyaralónak.
Befektetésnek kiváló:
- Rövid távú kiadás: A jelenlegi tulajdonos sikeresen üzemelteti rövid távú kiadásként.
- Hosszú távú kiadás: Siófokon óriási a kereslet a minőségi, belvárosi albérletekre – ez az ingatlan azonnal bérbe adható.

Elhelyezkedés: Minden karnyújtásnyira van.
- A Sió Pláza, pékségek, boltok (Spar, Penny), éttermek 1-2 perc,
- A vonat- és autóbusz állomás, posta 5 perc,
- A Balaton-part mindössze 10-15 perces sétatávolság.

A vételár magába foglalja a teljes bútorzatot, azonnal költözhető.
A lakáshoz opcionálisan teremgarázs hely is vásárolható 7,5 millió forintos áron.

Ne habozzon! Tegye meg az első lépést álmai ingatlanának megszerzése felé! Jöjjön el egy megtekintésre, és győződjön meg róla Ön is! Az ingatlan előzetes egyeztetéssel a hét minden napján megtekinthető. Amennyiben kérdése van, vagy időpontot egyeztetne, hívjon még ma!
Kár lenne kihagyni ezt a remek lehetőséget!

Vastag Ákos
PRÉMIUM

Vastag Ákos

2 éve a Városi Ingatlaniroda tagja
Ingatlanértékesítő
Siófok
+36 (30) 311 2069
Észrevétel a hirdetéssel kapcsolatban
Egy ingatlanos naplója