Ikerházak Debrecen-Pallag közkedvelt csendes utcájában

313 Nyomtatás Ajánlás Facebook

Költözzön nyugodt, zöld környezetbe Debrecen-Pallagon

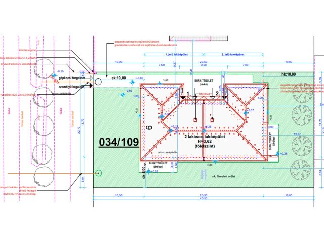
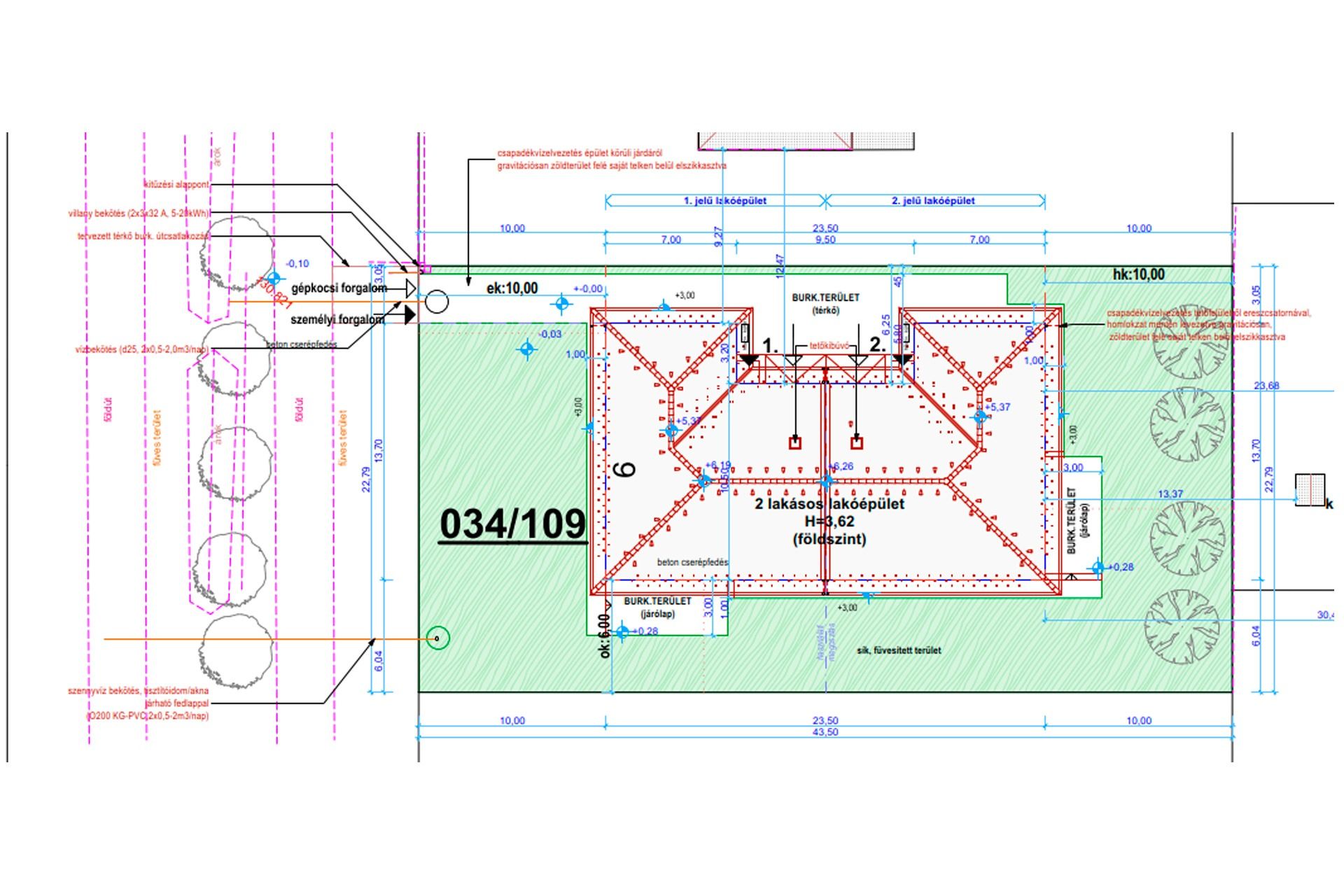
-Egy csendes utcában található egy új építésű ikerház, amely 119 m²-es alacsony fenntartású otthon.
Ideális választás család számára: biztonságos környék, jól élhető terek és modern, energiatakarékos megoldások.

- Az ingatlan 495 m²-es telekkel rendelkezik, amely tökéletes lehetőséget nyújt a kerti tevékenységekhez és a pihenéshez.

- Az ingatlan korszerű építési technológiával készül, praktikus elrendezéssel és kényelmes, jól kihasználható terekkel.
- Amerikai konyhás-étkező + nappali
- 3 külön nyíló szoba
- Klíma
- Padlófűtés
- Önálló kertkapcsolat tartozik az ingatlanhoz egy 20 m²-es terasz, illetve egy 18 m²-es garázs is
- Az ingatlan ára tartalmazza a kerítést és a garázs előtti térkövezést is

*A projektet egy tapasztalt, számos referenciával rendelkező beruházó és generálkivitelező valósítja meg, így a minőség és a megbízhatóság garantált*

TERVEZETT ÁTADÁS: 2026. április 30.

-Ne hagyja ki ezt a remek lehetőséget, ahol minden adott a nyugodt, kényelmes mindennapokhoz

Megtekintés előzetes időpont-egyeztetés alapján lehetséges
Nemes Gabriella+36-70-406-6880

Move into a peaceful, green environment in Debrecen-Pallagon

-A newly built semi-detached house is located in a quiet street, which is a 119 m² low-maintenance home.
An ideal choice for a family: safe neighborhood, well-livable spaces and modern, energy-saving solutions.

- The property has a 495 m² plot, which provides the perfect opportunity for garden activities and relaxation.

- The property is built with modern construction technology, with a practical layout and comfortable, well-utilized spaces.
- American kitchen-dining room + living room
- 3 separate rooms
- Air conditioning
- Underfloor heating
- The property has a separate garden connection, a 20 m² terrace and an 18 m² garage
- The price of the property includes the fence and the paving in front of the garage

*The project is being implemented by an experienced investor and general contractor with numerous references, so quality and reliability are guaranteed*

SCHEDULED HANDOVER: April 30, 2026

-Don't miss this great opportunity, where everything is provided for a calm, comfortable everyday life

Viewing is possible by prior appointment
Gabriella Nemes+36-70-406-6880

Nemes Gabriella

Nemes Gabriella

Ingatlanértékesítő
Debrecen
+36 (70) 406 6880
Észrevétel a hirdetéssel kapcsolatban
Egy ingatlanos naplója